Dare uno sguardo al cosiddetto “Piano delle Alienazioni” consente di farsi un’idea piuttosto precisa delle aree comunali attualmente inutilizzate e che, una volta vendute, potrebbero determinare un aumento di cemento.
Le leggi degli enti locali prescrivono che ogni Comune debba, ogni anno, aggiornare il cosiddetto Piano delle Alienazioni, un documento che elenca aree e immobili che non vengono utilizzate dall’ente. I beni inseriti sono quelli che non vengono ritenuti utili per le funzioni del Comune e che, quindi, possono essere vendute (o “alienate”, come nel linguaggio tecnico) oppure ri-valorizzate in qualche altro modo.
Pertanto, non è automatico che un’area o un edificio inserito nel Piano venga venduto, ma semplicemente indica che al momento non è utile alle funzionalità del Comune. Solo una banditura di vendita vera e propria determina la reale intenzione dell’ente di vendere il bene.
Il piano delle alienazioni 2023-2025 del Comune di Dalmine
L’Amministrazione ha presentato il piano ai consiglieri comunali a fine marzo 2023. I documenti verranno votati in Consiglio Comunale probabilmente ad aprile. Analizziamone il contenuto.
Nel Piano (documenti in PDF) sono inseriti dodici terreni che l’Amministrazione Comunale intende vendere nei prossimi anni, da piccolissimi appezzamenti (40 mq) fino ad aree molto grandi (12.000 mq). La maggior parte è stata valorizzata da perizie estimative realizzate tra il 2015 e il 2018 e c’è già stato almeno un tentativo di alienarle (che, ricordiamo, è sinonimo di “vendere”). Per questo, il valore a base d’asta – per legge – è stato ribassato dal 10% al 25% con la finalità di avere maggiore probabilità di vendere ed incassare soldi che possono poi essere investiti per realizzare opere pubbliche.
#1 – Via Pascolo (456 mq, valore a base d’asta € 58.140 – ribasso del 25% dalla perizia)
L’area di Mariano è prevista come residenziale nel Piano di Governo del Territorio (di seguito, PGT) del Comune di Dalmine e fa parte dell’ambito di trasformazione conosciuto come AT11 A2.
#2 – Via Nigarzola (3.046 mq, valore a base d’asta € 350.290)
Il terreno, nella frazione di Sforzatica S. Maria, è parte di AT01, conosciuta anche come l’area “Tecnomat” prospiciente a Via Provinciale. In questo terreno sorgeranno dunque attività commerciali. Il mappale è quello adiacente all’azienda produttrice d’acciaio “MEGA”, dall’altra parte della strada rispetto a “Retica Smart Mobility Store” e al negozio di motociclette “Legend Bikers”.
#3 – Via per Lallio (885 mq, valore a base d’asta € 76.331 – ribasso del 25% dalla perizia)
Anche questo terreno in vendita da parte del Comune di Dalmine, a Sforzatica S. Maria, è inquadrato nel “Bosco delle Attività Produttive” (AT01) ed ha dunque una destinazione prettamente commerciale.
#4 – Via Don Minzoni (136 mq, valore a base d’asta € 18.496 – ribasso del 25% dalla perizia)
La quarta area inserita nel Piano delle Alienazioni del Comune di Dalmine è decisamente più contenuta ed ha una funzione residenziale. Si tratta di una piccola striscia di terreno adiacente ad un’abitazione privata, nella zona molto vicina al Cimitero di Sforzatica in riqualificazione.
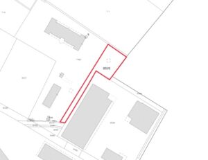
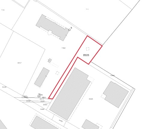
#5 – Via Kennedy (12.540 mq, valore a base d’asta € 1.652.000 – ribasso del 10% dalla perizia)
L’edificazione conosciuta come AT09 è nella zona centrale di Dalmine, vicina alle scuole superiori e all’area del mercato, e prevede la futura costruzione di campus a servizio scolastico. Una di queste aree, la più grande del Piano delle Alienazioni, è appunto in vendita da parte del Comune di Dalmine.
#6 – Via Lodi (40 mq, valore a base d’asta € 4.946 – ribasso del 10% dalla perizia)
Unica novità nel Piano delle Alienazioni 2023-2025 è una piccolissima area a Sabbio, in Via Lodi, che è destinata ad area produttiva. Si tratta di un fazzoletto di terra adiacente all’azienda “Citi – Machinery Market”.
#7 – Via Tre Venezie (6.357 mq, valore a base d’asta € 707.408 – ribasso del 25% dalla perizia)
A Guzzanica, nell’ambito di AT03, la realizzazione di nuove residenze nella frazione, c’è un’ampia area in vendita nella via principale del quartiere. Il terreno è molto vicino alla chiesa e adiacente all’azienda “Elephantech di Roberto Santini”.
#8 – Via Dante (1.200 mq, valore a base d’asta € 157.760 – ribasso del 20% dalla perizia)
Torniamo a Sforzatica, spostandoci a S. Andrea, nell’area centrale di Via Dante, prevista dal PGT come “centro storico e nucleo di antica formazione”. La zona in vendita è di discreta grandezza ed ha una funzione residenziale, inquadrata come “zone di demolizione e ricostruzione”.
#9 – Via Vailetta (2.090 mq, valore a base d’asta € 180.262 – ribasso del 25% dalla perizia)
Ci spostiamo nuovamente a Sforzatica S. Maria per la prima delle due aree in vendita in Via Vailetta, pertinente (di nuovo) ad AT01, la zona produttiva conosciuta anche come l’area dove sorge il Tecnomat. Anche in questo caso, l’area è prevista per la realizzazione di attività produttive.
#10 – Via Vailetta (180 mq, valore a base d’asta € 15.525 – ribasso del 25% dalla perizia)
Sempre in Via Vailetta, ci spostiamo su AT02, ovvero l’area di Porta Nord e delle residenze “Sun City”. Si tratta di un piccolissimo mappale vicino all’azienda “Oberti”.
#11 – Via Rimembranze (4.972 mq, valore a base d’asta € 649.104 – ribasso del 10% dalla perizia)
Ben più consistente il terreno in vendita in Via Rimembranze, nell’ambito delle edificazioni residenziali di AT12, vicine al Cimitero principale di Dalmine. Nel contesto di AT12, si ricorda il progetto approvato e finanziato che riguarda il prolungamento di Viale Rimembranze per connettere Dalmine a Treviolo.
#12- Via Monte Cervino angolo Via Brembo (140 mq, valore a base d’asta € 7.997 – ribasso del 10% dalla perizia)
Chiudiamo con l’unica area in vendita nella frazione di Brembo, un piccolo mappale nell’ambito dei servizi di Edilizia Residenziale Pubblica (le “case popolari”).
Per non perderti questa e altre notizie su Dalmine, iscriviti alla nostra newsletter mensile:

















Lascia un commento